Leírás
A Modulfix “QuickFix” alkalmazásával rendkívül gyorsan és költséghatékonyan szerelhetünk fel napelem paneleket lemezborítású tetőre!
Nincsen szükség leszorító elemekre vagy egyéb tartóra!
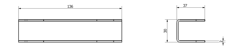
A QuickFix egy alumínium U-profil, amit a lemez bordájára, avval párhuzamosan rögzítünk 2 db Hatlapfejű önfúró bi-metal csavar (6,0x25mm) segítségével.
A profil és a lemez közé EPDM tömítőszalag felragasztása ajánlott. A panelek keretét egyszerűen csak beakasztjuk a fülekbe és ütközésig húzzuk.
Panelenként 4 rögzítési pont szükséges.
A piacon kapható más hasonló termékekkel ellentétben a Modulfix Quickfix 25 mm-es profilmagasságú, ami biztosítja a megfelelő szellőzést a lemezhéjazat és a napelem panel között.

















Reviews
There are no reviews yet.